ID CP2825850

Apartament 3 camere Otopeni - NOU, ultrafinisat, TVA + Parcare incluse

ID CP2825850

123,990 € (negociabil) TVA inclus

Apartament cu 3 camere de vânzare
Central, Otopeni
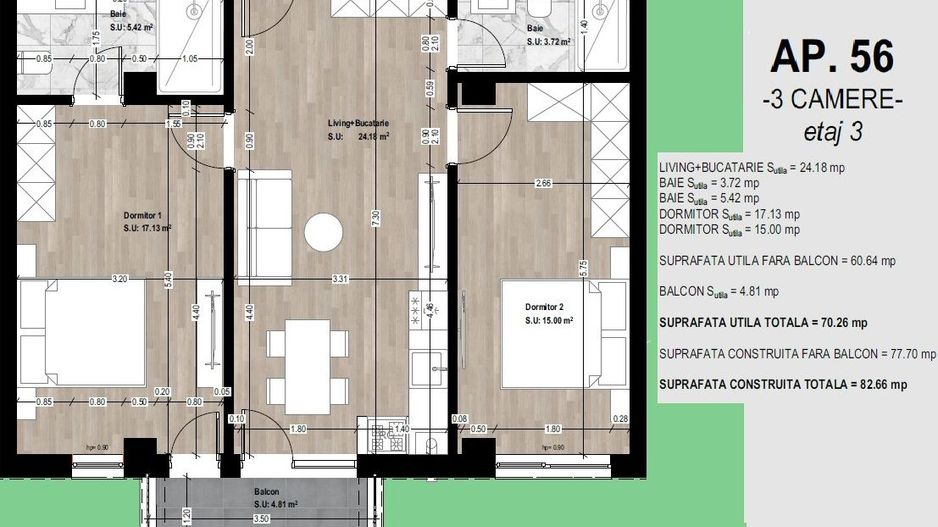
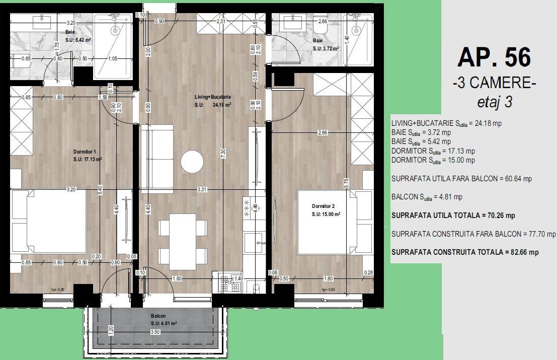
65.45 mp
2026

Îți propun, spre vânzare, un apartament cu 3 camere în Otopeni, într-un bloc nou – prețul include TVA și un loc de parcare, deci fără costuri ascunse (comision zero, achiziția se face direct de la dezvoltator).

Locuința beneficiază de o compartimentare foarte practică. Zona de zi este un spațiu aerisit și luminos, cu acces spre balcon, deservit de o baie spațioasă. Dormitoarele sunt separate, cu acces din zona de zi, pentru un plus de confort. Dormitorul matrimonial beneficiază de baie proprie și acces spre balcon, iar al doilea dormitor, în suprafața de 15 mp utili, este foarte spațios și potrivit pentru copii, oaspeți sau ca birou / dressing.

Apartamentul beneficiază de:

• Finisaje moderne (se predă "la gata", cu finisaje și sanitare montate)

• Centrală proprie

• Bloc nou D+P+3, racordat la toate utilitățile publice

• Străzi asfaltate, iluminat public, stație de transport în comun în fața complexului

• Orientare spre Sud– lumină toată ziua

• Disponibil la etajele 2 si 3

Este o locuință potrivită atât pentru familie, cât și ca investiție, într-o zonă în plină dezvoltare și liniștită, cu acces facil către toate zonele de interes. Spațiul este optimizat inteligent, astfel încât fiecare încăpere să fie funcțională și primitoare.

Dacă vrei un apartament bine compartimentat, luminos și modern, sună-mă!

*Imaginile prezentate au caracter orientativ.

Citește mai mult

  • Tip apartament
    Apartament
  • Compartimentare
    Semidecomandat
  • Număr camere
    3
  • Dormitoare
    2
  • Număr bucătării
    1
  • Număr băi
    2
  • Etaj
    2, 3
  • Suprafață utilă
    65.45 mp
  • Suprafață construită
    82.66 mp
  • Suprafață totală
    70.26 mp
  • Disponibilitate
    primavara 2026
  • Orientare
    Sud
  • Confort
    2
  • Stare interior
    Ultrafinisat
  • Număr balcoane
    1
  • Număr locuri parcare
    1
  • Imobil
    Bloc de apart.
  • Stadiu construcție
    Semifinisat
  • An construcție
    2026
  • Construcție nouă
    Da
  • De la dezvoltator
    Da
  • Tip construcție
    BCA
  • Număr etaje clădire
    3

Facilități

Apă
Apometre
Bucătărie deschisă
Cabină de duș
Cadă
Calorifere
Canalizare
CATV
Centrală proprie
Contor electric
Contor gaz
Curent
Faianță
Gaz
Geamuri termopan
Gresie
Iluminat stradal
Interfon
Internet
Izolație exterioară
Mijloace de transport în comun
Nemobilat
Parcare deschisă
Parchet laminat
Străzi asfaltate
Supraveghere video
Telecomandă poartă acces auto
Telefon
Ușă intrare metal
Uși interior celulare
Vedere panoramică
Vopsea lavabilă
WC Serviciu
Wireless
Alexandra Pașalău - Home Agency
Alexandra Pașalău
Real Estate Manager

0724039128


Solicită chiar acum o vizionare
Telefon
Sună acum Solicită vizionare
Necesare:

Site-ul nu poate funcționa corect fără aceste cookie-uri. Vezi cookie-urile

Statistică:

Strângem statistici anonime despre voi, vizitatorii unici, pentru a vă îmbunătăți experiența dumneavoastră. Vezi cookie-urile

Marketing:

Pentru a ne promova mai eficient serviciile noastre, folosim cookies pentru a vă identifica și a vă oferi proprietăți și servicii personalizate. Vezi cookie-urile

Acest site folosește cookies, află detalii. Alege ce tipuri de cookies dorești să permitem: