ID CP2721325

Casă P+1 modernă, finisaje premium, teren 375 mp | Tunari

ID CP2721325

265,000 €

Casă / Vilă cu 4 camere de vânzare
Tunari
145 mp
2025

📍Situată într-o zonă în plină dezvoltare rezidențială, în Tunari, această proprietate modernă oferă spațiu, confort și intimitate, cu acces facil către DN1, Centură, autostrăzi, magazine, restaurante, școli și grădinițe, precum și zonele de interes din zona de Nord a Capitalei.

🏡Caracteristici principale:

- Suprafață construită generoasă, compartimentare optimă pentru familie

- Structură solidă din beton și cărămidă Porotherm (30 cm), izolată corespunzător

- Finisaje premium: parchet, gresie, faianță, băi complet utilate

- Încălzire prin pardoseală

- Iluminat modern premium integrat pe scări și în tavan

- Casa se predă complet finisată, racordată la toate utilitățile publice, cu centrală termică proprie și balustradă montate.

✨Compartimentare:

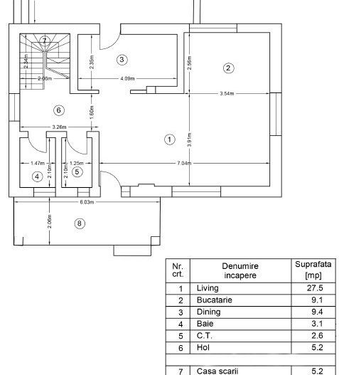
- Parter: living cu zonă de dining, bucătărie retrasă (se poate închide dacă se dorește) cu acces spre grădină, baie de serviciu, cameră tehnică, spațiu depozitare sub scară

- Etaj: dormitor matrimonial cu dressing, baie proprie (cadă) și balcon + 2 dormitoare și o baie comună modernă (duș tip walk-in)

🌿Avantaje suplimentare:

- Curte spațioasă, ideală pentru relaxare sau loc de joacă

- Vecinătate cu case moderne, valoare imobiliară ridicată

- Acces rapid către DN1, Centură, autostrăzi și Nordul Capitalei

- Posibilitate de achiziție prin credit ipotecar

ℹ️ Opțional, se acceptă și plata în rate directe către proprietar pe o perioadă de 2 ani maxim

📞Programează acum o vizionare!

Citește mai mult

  • Număr camere
    4
  • Dormitoare
    3
  • Număr bucătării
    1
  • Număr băi
    3
  • Geam la baie
    Da
  • Număr balcoane
    1
  • Număr terase
    2
  • Număr locuri parcare
    2
  • Disponibilitate
    o luna
  • Tip casă
    Individual
  • Stare interior
    Ultrafinisat
  • Anul finisării
    2025
  • Suprafață utilă
    145 mp
  • Suprafață construită
    180 mp
  • Suprafață construită la sol (Amprentă)
    93.2 mp
  • Suprafață teren
    375 mp
  • Suprafață curte
    300 mp
  • Acoperiș
    Tablă
  • Stadiu construcție
    Finalizată
  • An construcție
    2025
  • Construcție nouă
    Da
  • Tip construcție
    Cărămidă
  • Număr etaje clădire
    1

Facilități

Apă
Apometre
Bucătărie deschisă
Cabină de duș
Cadă
Canalizare
CATV
Centrală proprie
Contor electric
Contor gaz
Curent
Curte
Curte comună
Debara
Dressing
Faianță
Gaz
Geamuri termopan
Grădină proprie
Gresie
Încălzire prin pardoseală
Interfon
Internet
Izolație exterioară
Nemobilat
Parcare deschisă
Parchet laminat
Scară interioară
Telecomandă poartă acces auto
Telefon
Ușă intrare metal
Uși interior celulare
Vedere panoramică
Videointerfon
Vopsea lavabilă
WC Serviciu
Zonă pentru barbeque
Alexandra Pașalău - Home Agency
Alexandra Pașalău
Real Estate Manager

0724039128


Solicită chiar acum o vizionare
Telefon
Sună acum Solicită vizionare
Necesare:

Site-ul nu poate funcționa corect fără aceste cookie-uri. Vezi cookie-urile

Statistică:

Strângem statistici anonime despre voi, vizitatorii unici, pentru a vă îmbunătăți experiența dumneavoastră. Vezi cookie-urile

Marketing:

Pentru a ne promova mai eficient serviciile noastre, folosim cookies pentru a vă identifica și a vă oferi proprietăți și servicii personalizate. Vezi cookie-urile

Acest site folosește cookies, află detalii. Alege ce tipuri de cookies dorești să permitem: