ID CP2800702

Apartament 2 camere Otopeni central, finisaje la alegere, preț avantajos!

ID CP2800702

96,000 € + 21% TVA

Apartament cu 2 camere de vânzare
Nord, Otopeni
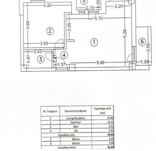
44.89 mp
2020

Dacă îți dorești o locuință modernă, luminoasă și bine compartimentată, amplasată într-o zonă excelentă, acesta este apartamentul perfect pentru tine!

Sună acum și programează o vizionare – merită văzut, ultimul disponibil!

Situat chiar în centrul orașului Otopeni, la nici 10 minute de mers pe jos de DN1, acest apartament oferă acces facil către București, Aeroportul Otopeni, Centură și Autostrada A3, dar și proximitate față de toate facilitățile de zi cu zi: magazine, restaurante, piață, farmacii, școală, grădinițe, parcuri și viitoarea stație de metrou.

Apartamentul se află într-un imobil nou, cu structură solidă din beton armat și pereți din cărămidă (atât interiori, cât și exteriori), oferind o izolare termică și fonică excelentă.

Compartimentarea este eficientă, gândită pentru confort și funcționalitate:

- Living generos cu bucătărie open-space – spațiu luminos, perfect pentru relaxare sau pentru momente petrecute în familie;

- Dormitor confortabil, prevăzut cu zonă de dressing;

- Baie complet utilată, cu finisaje moderne;

- Două balcoane spațioase pe zona de zi, ideale pentru a te bucura de lumină naturală și aer curat.

Apartamentul se predă racordat la toate utilitățile publice, cu centrală termică proprie și "la cheie": tu îți poți alege finisajele interioare în funcție de stilul tău (gresie, faianță, parchet, uși interioare și obiecte sanitare) – toate incluse în preț!!!

Avantaje cheie - în afară de locație și calitatea execuției:

- Fără comision – achiziție direct de la dezvoltator;

- Preț extrem de competitiv pentru zonă și calitatea oferită

Această proprietate reprezintă și o oportunitate excelentă de investiție, datorită poziționării sale centrale în Otopeni. Locația permite un randament foarte bun, indiferent dacă vrei să o închiriezi pe termen scurt (regim hotelier), mediu sau lung. Compartimentarea eficientă și spațiile luminoase fac apartamentul atractiv pentru orice tip de chiriaș, iar cererea în zonă este constantă.

Programează acum o vizionare și descoperă acest apartament!

Beneficiezi GRATUIT de consultanță financiară și asistență juridică completă, prin partenerii noștri, pe tot parcursul procesului de achiziție. Răspundem rapid – sună acum pentru detalii!

Citește mai mult

  • Tip apartament
    Apartament
  • Compartimentare
    Semidecomandat
  • Număr camere
    2
  • Dormitoare
    1
  • Număr bucătării
    1
  • Număr băi
    1
  • Etaj
    2
  • Suprafață utilă
    44.89 mp
  • Suprafață construită
    51.54 mp
  • Suprafață terasă
    3.96 mp
  • Disponibilitate
    maxim 1 luna
  • Orientare
    Nord-Vest
  • Confort
    1
  • Stare interior
    Ultrafinisat
  • Număr balcoane
    2
  • Imobil
    Bloc de apart.
  • Stadiu construcție
    Finalizată
  • An construcție
    2020
  • Construcție nouă
    Da
  • De la dezvoltator
    Da
  • Tip construcție
    Cărămidă
  • Număr etaje clădire
    3

Facilități

Apă
Apometre
Bucătărie deschisă
Cabină de duș
Cadă
Calorifere
Canalizare
CATV
Centrală proprie
Contor electric
Contor gaz
Curent
Faianță
Gaz
Geamuri termopan
Gresie
Iluminat stradal
Interfon
Internet
Izolație exterioară
Mijloace de transport în comun
Nemobilat
Parcare deschisă
Parchet laminat
Străzi asfaltate
Telefon
Ușă intrare metal
Uși interior celulare
Vedere panoramică
Vopsea lavabilă
Alexandra Pașalău - Home Agency
Alexandra Pașalău
Real Estate Manager

0724039128


Solicită chiar acum o vizionare
Telefon
Sună acum Solicită vizionare
Necesare:

Site-ul nu poate funcționa corect fără aceste cookie-uri. Vezi cookie-urile

Statistică:

Strângem statistici anonime despre voi, vizitatorii unici, pentru a vă îmbunătăți experiența dumneavoastră. Vezi cookie-urile

Marketing:

Pentru a ne promova mai eficient serviciile noastre, folosim cookies pentru a vă identifica și a vă oferi proprietăți și servicii personalizate. Vezi cookie-urile

Acest site folosește cookies, află detalii. Alege ce tipuri de cookies dorești să permitem: