ID CP2801335

Apartament 2 camere + curte 110 mp Otopeni centru, acces pietonal DN/metrou

ID CP2801335

117,000 € + 21% TVA

Apartament cu 2 camere de vânzare
Nord, Otopeni
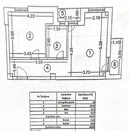
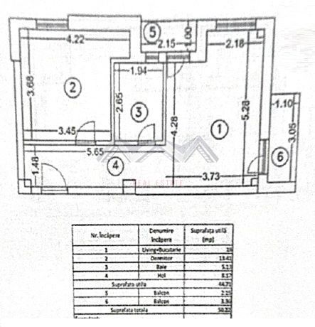
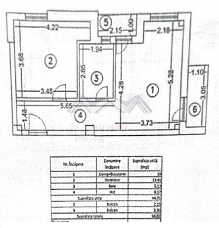
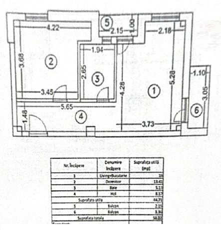
44.72 mp
2020

Vă prezentam, spre vânzare, un apartament luminos și spațios cu 2 camere și curte proprie de 110 mp, situat ultracentral în Otopeni, într-o zonă liniștită, dar aproape de tot ce ai nevoie zi de zi - la nici 10 minute de mers pe jos de DN1, viitoarea stație de metrou, magazine, restaurante, piață, școală, grădiniță și parc, iar accesul către București, Centură, Autostradă și Aeroport este rapid și facil.

Detalii apartament:

- Suprafață utilă, orientare Nord-Vest – perfectă pentru lumină naturală pe tot parcursul zilei

- Living spațios cu bucătărie open-space, cu acces direct către curtea proprie

- Dormitor confortabil

- Baie cu geam

- Hol generos, pentru spații de depozitare

- Curte proprie de 110 mp, ideală pentru relaxare, grătar, spațiu verde sau loc de joacă.

Construcție și finisaje:

- Bloc nou, cu structură din beton armat și pereți din cărămidă (interiori și exteriori), ce oferă o izolare termică și fonică excelentă.

- Finisajele interioare sunt incluse în preț și vor fi alese de tine – faianță, gresie, parchet, uși interioare și baie complet utilată modern

- Se prada racordat la toate utilitatile publice (apă, gaz, curent, canalizare)

- Se predă la cheie, gata pentru mutare

Avantaje cheie:

- Locație excelentă – central, dar într-o zonă liniștită

- Curte privată de 110 mp – rar întâlnită în Otopeni

- Finisaje personalizabile, alese de tine

- Ideal atât pentru locuire, cât și pentru investiție cu randament foarte bun

- Fără comision – achiziție direct de la dezvoltator

Compartimentarea practică și curtea proprie oferă flexibilitate maximă – ideal atât pentru locuință, cât și pentru amenajarea unui birou sau cabinet, în funcție de nevoi.

Sună acum și programează o vizionare!

Beneficiezi GRATUIT de consultanță financiară și asistență juridică completă, prin partenerii noștri, pe tot parcursul procesului de achiziție.

Citește mai mult

  • Tip apartament
    Apartament
  • Compartimentare
    Semidecomandat
  • Număr camere
    2
  • Dormitoare
    1
  • Număr bucătării
    1
  • Număr băi
    1
  • Geam la baie
    Da
  • Etaj
    Parter
  • Suprafață utilă
    44.72 mp
  • Suprafață construită
    55 mp
  • Suprafață totală
    50.22 mp
  • Suprafață terasă
    3.39 mp
  • Suprafață curte
    110 mp
  • Disponibilitate
    1 luna
  • Orientare
    Nord-Vest
  • Confort
    1
  • Stare interior
    Ultrafinisat
  • Număr balcoane
    2
  • Imobil
    Bloc de apart.
  • Stadiu construcție
    Finalizată
  • An construcție
    2020
  • Construcție nouă
    Da
  • De la dezvoltator
    Da
  • Tip construcție
    Cărămidă
  • Număr etaje clădire
    3

Facilități

Apă
Apometre
Bucătărie deschisă
Cabină de duș
Cadă
Calorifere
Canalizare
CATV
Centrală proprie
Contor electric
Contor gaz
Curent
Faianță
Gaz
Geamuri termopan
Gresie
Iluminat stradal
Interfon
Internet
Izolație exterioară
Mijloace de transport în comun
Nemobilat
Parcare deschisă
Parchet laminat
Străzi asfaltate
Telefon
Ușă intrare metal
Uși interior celulare
Vedere panoramică
Vopsea lavabilă
Alexandra Pașalău - Home Agency
Alexandra Pașalău
Real Estate Manager

0724039128


Solicită chiar acum o vizionare
Telefon
Sună acum Solicită vizionare
Necesare:

Site-ul nu poate funcționa corect fără aceste cookie-uri. Vezi cookie-urile

Statistică:

Strângem statistici anonime despre voi, vizitatorii unici, pentru a vă îmbunătăți experiența dumneavoastră. Vezi cookie-urile

Marketing:

Pentru a ne promova mai eficient serviciile noastre, folosim cookies pentru a vă identifica și a vă oferi proprietăți și servicii personalizate. Vezi cookie-urile

Acest site folosește cookies, află detalii. Alege ce tipuri de cookies dorești să permitem: